







Step into a relaxed, resort-style lifestyle in the Sunseeker building at Friday Harbour. This inviting 1-bedroom suite features contemporary design elements and a north-facing balcony—perfect for unwinding in a peaceful setting. Residents have access to an impressive collection of amenities, hot tub, theatre room, golf simulator, and stylish gathering spaces. Set along the shores of Lake Simcoe, Friday Harbour is a premier waterfront community offering a marina, championship golf course, lush nature preserve, beach club, acclaimed dining, and year-round recreational experiences.
Home highlights
- 1 locker
- 9’ ceilings
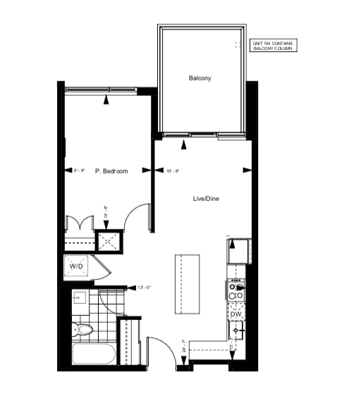
Floorplan
Resort Living
Dive into the many delights of living at Friday Harbour, including membership to The Lake Club, Beach Club Pool and FH Fit. Residents receive priority access and preferred rates to the Nest golf course and the Marina.
Additional homes may be available. Call today!
Discover your next dream home. Sign up to receive more information and updates about Friday Harbour Real Estate Brokerage.
Thank you for your interest.